Appartement

Paris 11ème • 165.89 m2 2 000 000 €

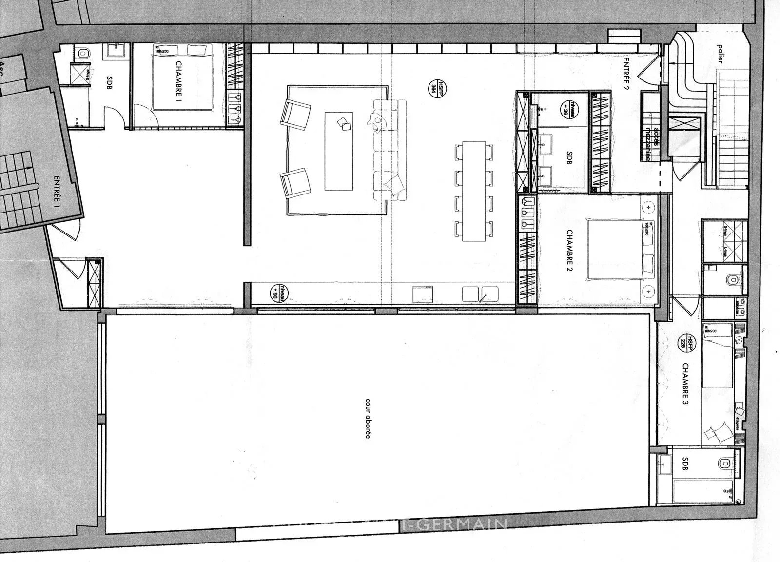
Exclusivité – Rare à la vente. Issu de la réhabilitation d’une ancienne manufacture de caméras, ce superbe loft industriel offre un cadre de vie unique, mêlant cachet de l’ancien et rénovation contemporaine de qualité. Situé au cœur du 11ᵉ arrondissement, dans un environnement calme et à l’abri des regards, au 2ᵉ étage avec ascenseur d’un immeuble de la fin du XIXᵉ siècle, ce bien lumineux et sans vis-à-vis séduit par ses volumes spectaculaires et sa hauteur sous plafond de 3,40 m. Entièrement repensé par architecte, cet appartement développe une surface de 165 m² Carrez et se compose de : Un vaste double séjour aux volumes impressionnants Une cuisine ouverte, aménagée et équipée Une grande chambre parentale Deux autres chambres Un bureau Une salle de bains avec WC 2 salles de douche avec WC Un WC invités Une mezzanine complète ce bien, idéale pour créer un espace cocooning, coin TV ou salle de jeux (non compris dans la surface carrez). Atouts supplémentaires : Possibilité de créer une chambre supplémentaire Possibilité de division en deux lots, permettant notamment la création d’un 2 pièces indépendant à usage locatif Bien adapté à l’exercice d’une profession libérale Écoles (maternelle, primaire et collège) à moins de 500 mètres Métro ligne 3 à 200 m et ligne 2 à 400 m Calme absolu, volumes rares, esprit loft industriel Un bien atypique et inspirant, parfait pour les amateurs d’espaces ouverts et de lieux de vie hors du commun.

Descriptif du bien

  • Surface : 165 m2
  • Surface totale : 165.89 m2
  • Nombre de Pièces : 5
  • Nombre de Chambres : 3
  • Nature du Chauffage : Gaz
  • Type du Chauffage : Collectif
  • Étage : 2ème / 5

Details

  • Séjour/cuisine: 1
  • Chambre: 1
  • Chambre: 1
  • Chambre: 1
  • Salon: 1
  • Salle de douche: 1
  • Salle de bains / toilettes: 1
  • Salle de douche / toilettes: 1
  • Toilettes: 1
  • Dégagement: 1
  • Mezzanine: 1
  • Entrée: 1
  • Débarras: 1
  • Dressing: 1
  • Buanderie: 1

Surfaces

  • - Séjour/cuisine: 65.66 m2
  • - Chambre: 9.41 m2
  • - Salon: 23.34 m2
  • - Salle de douche: 3.6 m2
  • - Salle de bains / toilettes: 4.58 m2
  • - Salle de douche / toilettes: 5.76 m2
  • - Toilettes: 1.16 m2
  • - Dégagement: 19.45 m2
  • - Entrée: 1.53 m2
  • - Débarras: 1.74 m2
  • - Dressing: 1.51 m2
  • - Buanderie: 1.61 m2

Informations complémentaires

  • Année de construction de l'immeuble: 1989
  • Services:
    • - Double vitrage
    • - Ascenseur
    • - Concierge
    • - Fibre optique
    • - Alarme

Données financières

  • Taxe foncière : N.C
  • Charges annuelles : 2040 € / an
  • Prix hors honoraires : 1 930 000 €
  • Honoraires acquéreur : 70 000 € TTC