Appartement

Paris 3ème • 84.65 m2 890 000 €

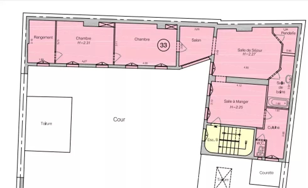
Dans le haut Marais, au milieu de la charmante rue Notre Dame de Nazareth, ce grand 4 pièces entièrement et récemment rénové, de près de 85 mètres carrés, donnant sur une jolie cour pavée au calme, vous séduira par son exposition plein Sud et son voisinage tranquille, seul sur le palier. Il est proche de tous commerce et du métro Temple. L'appartement se compose au choix d'un 3 ou 2 chambres, d' une salle à manger, un salon, une cuisine séparée, toilettes séparés. Possibilité de créer une deuxième salle de bains avec wc attenante à une chambre pour en faire une suite parentale. HSP 2,30 mètres. La rénovation qui vient de se terminer offre de multiples possibilités selon situation personnelle et familiale. Fenêtres neuves. Possibilité de garer son vélo dans la cour. Copropriété agréable.

Descriptif du bien

  • Surface : 84.65 m2
  • Surface totale : 84.65 m2
  • Nombre de Pièces : 4
  • Nombre de Chambres : 2
  • Nature du Chauffage : Electrique
  • Type du Chauffage : Individuel
  • Étage : 2ème / 6

Details

  • Salon: 1
  • Salon: 1
  • Dégagement: 1
  • Chambre: 1
  • Chambre: 1
  • Bureau: 1
  • Dressing: 1
  • Salle de bains: 1
  • Cuisine: 1
  • Toilettes: 1

Surfaces

  • - Salon: 17.33 m2
  • - Dégagement: 6.27 m2
  • - Chambre: 12.66 m2
  • - Bureau: 6.24 m2
  • - Dressing: 2.57 m2
  • - Salle de bains: 5.53 m2
  • - Cuisine: 6.45 m2
  • - Toilettes: 0.91 m2

Informations complémentaires

  • Année de construction de l'immeuble: 1880
  • Services:
    • - Double vitrage
    • - Fenêtre PVC
    • - Internet
    • - Digicode
    • - Interphone
    • - Local à vélo
    • - Vide sanitaire
    • - Barres de fenêtres
    • - Fibre optique

Données financières

  • Taxe foncière : 580 €
  • Charges annuelles : 2640 € / an
  • Prix hors honoraires : 855 769 €
  • Honoraires acquéreur : 34 231 € TTC