Appartement

Paris 4ème • 163.09 m2 3 100 000 €

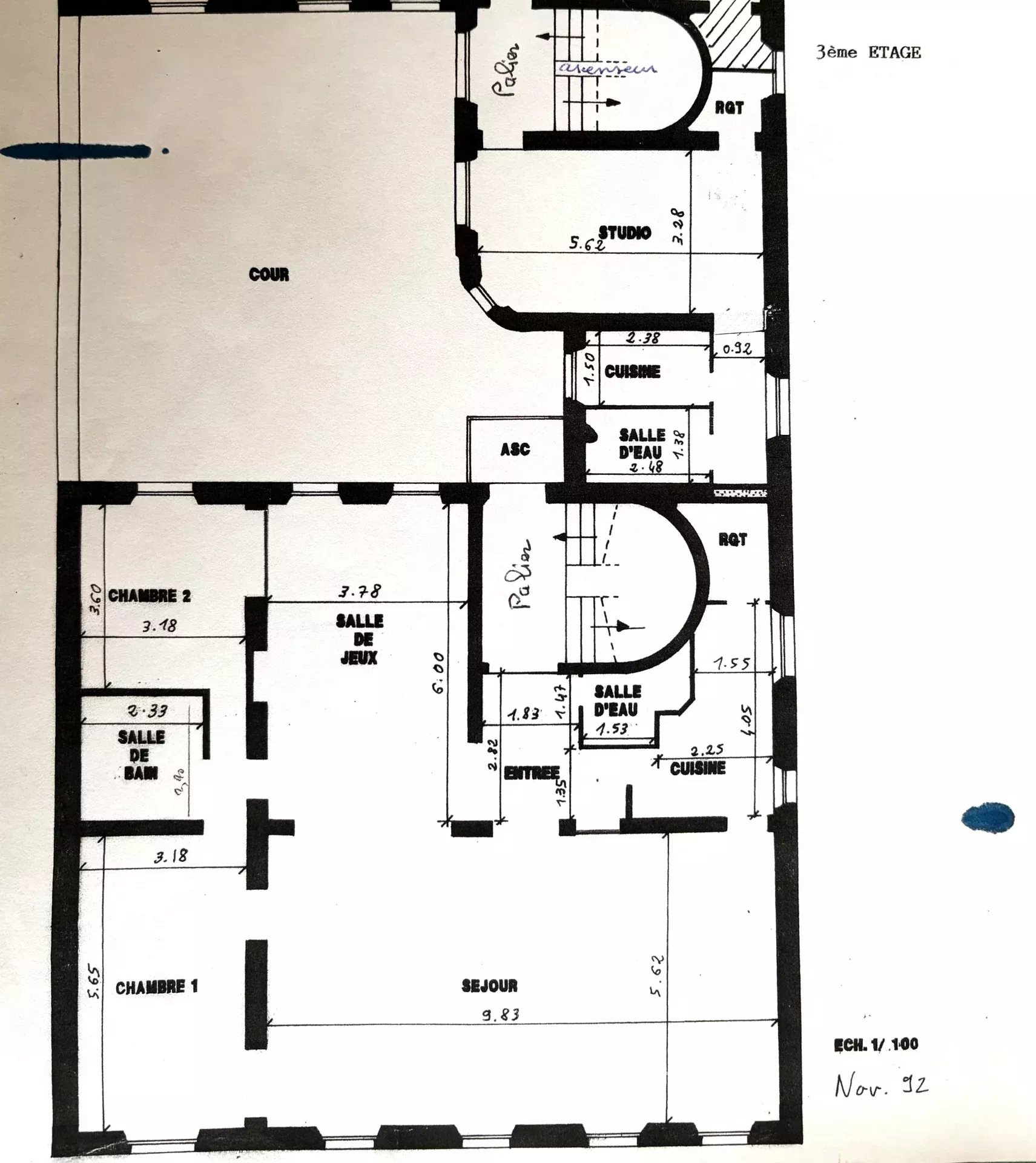
Dans l’un des très rares immeubles d’habitation de l’Île de la Cité, au 3ᵉ étage avec ascenseur d’un superbe immeuble gardienné, découvrez un appartement qui coche toutes les cases du bien d’exception. Seul à l’étage, il bénéficie d’une exposition plein sud et de cinq fenêtres directement sur la Seine, offrant une luminosité spectaculaire et un charme parisien sans compromis. L’appartement dévoile une magnifique double réception de 56.18 m² aux volumes superbes, un plan traversant comprenant trois chambres, deux salles d’eau avec toilettes, ainsi qu’une cuisine indépendante. Un studio attenant de 27 m², facilement raccordable ou conservable comme espace autonome, vient compléter l’ensemble. La hauteur sous plafond de trois mètres restitue toute la noblesse de l’ancien, tandis qu’une grande cave saine — rare dans ce secteur historique — ajoute une vraie valeur d’usage. L’ensemble est à rénover, offrant une occasion unique d’imaginer un intérieur sur-mesure dans l’un des lieux les plus prestigieux de la capitale. Ce que vous achetez vraiment : un emplacement unique, une vue qui ne laisse personne indifférent et des volumes remarquables.

Descriptif du bien

  • Surface : 163.09 m2
  • Surface totale : 163.09 m2
  • Nombre de Pièces : 6
  • Nombre de Chambres : 4
  • Nature du Chauffage : Gaz
  • Type du Chauffage : Collectif
  • Étage : 3ème / 6

Details

  • Entrée: 1
  • Salle de douche / toilettes: 1
  • Chambre: 1
  • Chambre: 1
  • Cuisine: 1
  • Double réception: 1
  • Chambre: 1
  • Salle de douche / toilettes: 1
  • Studio: 1
  • Cave: 3

Surfaces

  • - Entrée: 6.52 m2
  • - Salle de douche / toilettes: 5.14 m2
  • - Chambre: 23.7 m2
  • - Cuisine: 8.35 m2
  • - Double réception: 56.18 m2
  • - Studio: 27 m2

Informations complémentaires

  • Année de construction de l'immeuble: 1890
  • Services:
    • - Ascenseur
    • - Fibre optique
    • - Digicode
    • - Gardien
    • - Double vitrage

Données financières

  • Taxe foncière : 4101 €
  • Charges annuelles : 11220 € / an
  • Prix hors honoraires : 2 967 000 €
  • Honoraires acquéreur : 133 000 € TTC