Appartement

Paris 7ème • 46.02 m2 645 000 €

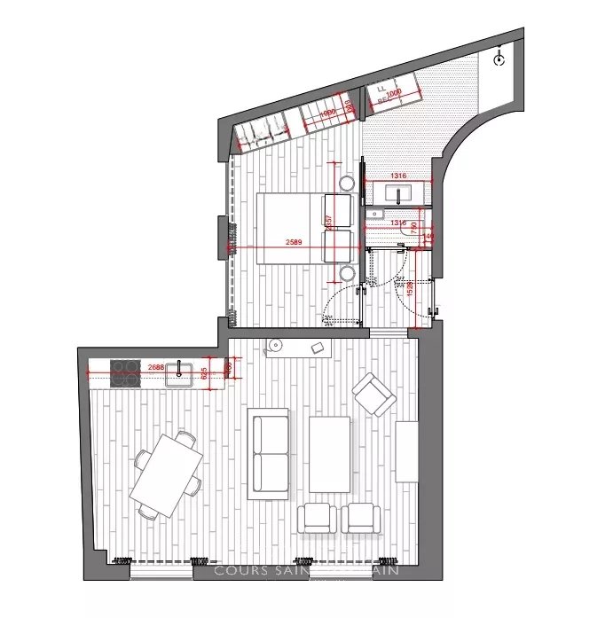
Situé entre la rue de Grenelle et la rue Saint-Dominique, au 4ᵉ étage sans ascenseur (probabilité importante d'une mise en place d'ascenseur) d’un élégant immeuble haussmannien de 1875, cet appartement de 46.02 m², entièrement refait à neuf, offre un cadre de vie recherché au cœur du 7ᵉ arrondissement. Il se compose d’une entrée avec toilettes et lave-mains séparés, desservant un double séjour lumineux avec cuisine ouverte, bénéficiant d’une exposition Est. L’étage élevé apporte une belle luminosité à l’appartement. Le charme de l’ancien est préservé, avec de belles moulure. La cuisine, entièrement équipée, s’intègre harmonieusement à l’espace de vie, idéal pour recevoir. La chambre, au calme sur cour, dispose de sa salle de douche attenante, offrant confort et intimité. L’ensemble est en excellent état, prêt à emménager, et associe le charme de l’ancien à une rénovation contemporaine de qualité. Une cave complète ce bien.

Descriptif du bien

  • Surface : 46.02 m2
  • Surface totale : 46.02 m2
  • Nombre de Pièces : 2
  • Nombre de Chambres : 1
  • Nature du Chauffage : Electrique
  • Type du Chauffage : Individuel
  • Étage : 4ème / 5

Details

  • Entrée: 1
  • Séjour/cuisine: 1
  • Chambre: 1
  • Salle de douche: 1
  • Toilettes: 1
  • Cave: 1

Surfaces

  • - Entrée: 2.05 m2
  • - Séjour/cuisine: 27.34 m2
  • - Chambre: 11.17 m2
  • - Salle de douche: 4.28 m2
  • - Toilettes: 1.18 m2

Informations complémentaires

  • Année de construction de l'immeuble: 1875
  • Services:
    • - Double vitrage
    • - Fibre optique
    • - Local à vélo
    • - Digicode

Données financières

  • Taxe foncière : 780 €
  • Charges annuelles : 1764 € / an
  • Prix hors honoraires : 620 000 €
  • Honoraires acquéreur : 25 000 € TTC